Skip links

6 Rosina Place, Pakuranga Heights

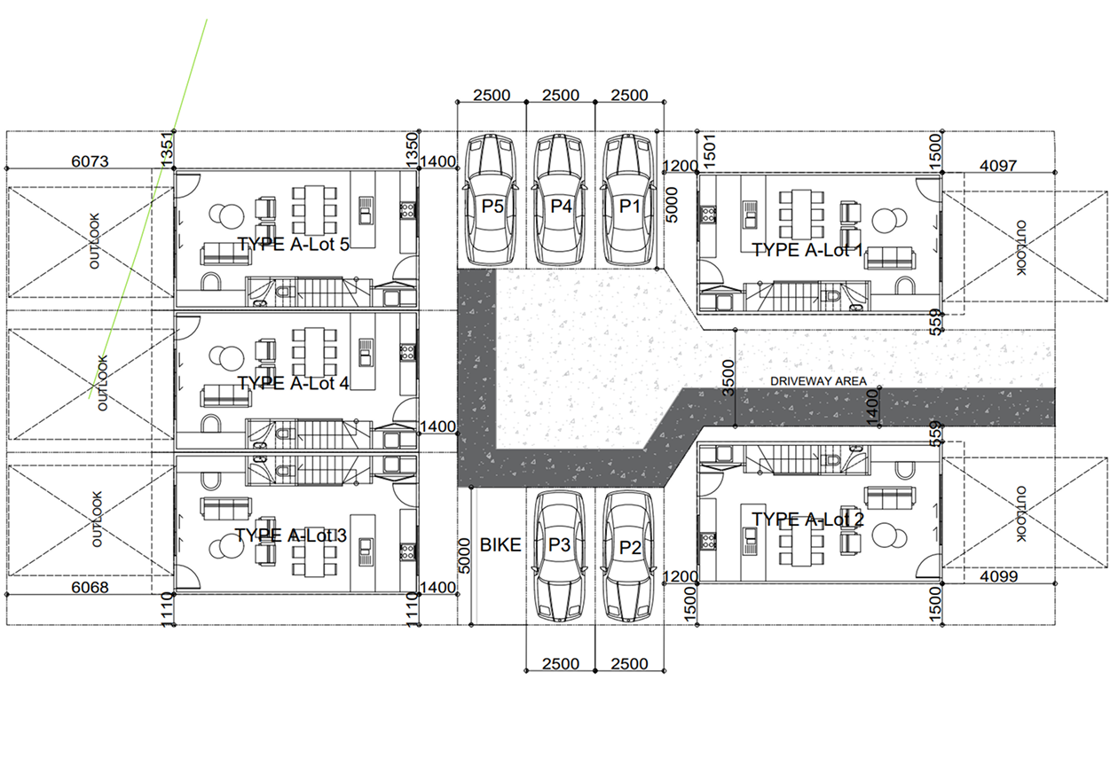
A charming development of five thoughtfully designed homes, each offering 3 bedrooms, 2 bathrooms, and an allocated carpark in a peaceful cul-de-sac. Combining comfort, practicality, and timeless design, these homes are perfect for families seeking modern living in a well-connected community.

Project Overview

5 Unit Developments

3 Bedroom

2 Bathroom

1 Allocated Carpark